您好, 欢迎来到百铸网! 热线电话:400-8088-177 企业邮箱:[email protected] 注册|登录
2026-04-28来源:暂无数据
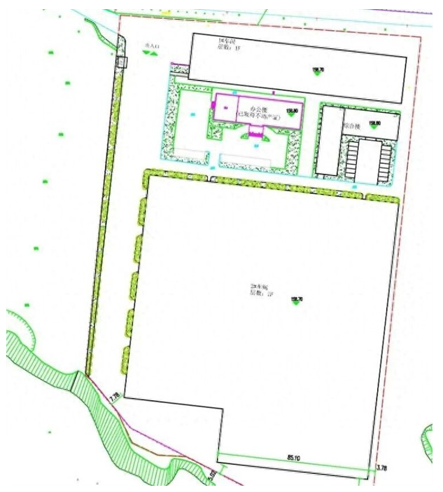
据青州政府网公示信息显示,青州市拟建设年产20000吨高端机械零部件项目,项目由青州市圣晨机械科技有限公司建设,位于青州市邵庄镇峱山工业园荆州路以南、兖州路以东,总投资1.4亿元。

项目用地面积4.22hm2(42161m2 ),总建筑面积20000m2。项目原有4F办公楼1栋,规划建设2F的综合楼1栋、1F的车间2座及道路、绿化等配套设施。新上消失模生产线1条、覆膜砂生产线1条、低压铸铝生产线1条,购置安装8台1t中频感应电炉、2台0.5T中频感应电炉、制芯机40台、0.5吨铸铝电阻炉6台、低压铸造机10台,同时配套砂处理系统、抛丸机、加工中心等设备,项目建成后,实现年产20000吨高端机械零部件的生产能力(其中黑色金属铸造18000吨,有色金属铸造2000吨)。建筑密度59.32%,容积率1.20,绿地率6.52%。
项目计划于2026年5月开工,预计于2026年12月完工,总工期8个月。
免责声明:平台所提供的信息及资料除原创外,部分内容来源于网络等媒体,版权归原作者及媒体网站所有,平台力求尊重原创、尊重版权,尽可能标注版权信息和转载来源;如出现信息不准确或作者署名有误等情况,敬请原作者谅解,并立即通知平台(投诉邮箱:[email protected]),我们将调查核实后予以更正或删除,同时向您表示歉意!
友情链接 友链交换添加QQ:2694467624 其他问题请咨询网站客服